物件情報property
尼崎市額田町
Aria House額田町
限定1区画分譲!土地約20坪・角地!
◇阪急神戸線「園田」駅 徒歩12分・JR東西線「加島」駅 徒歩33分◇
◆近距離に商業施設や公園など充実◆
小園小学校 徒歩17分 小園中学校 徒歩16分
善法寺保育園 徒歩10分 イオンスタイル尼崎 徒歩14分
- 【豪華設備】
■省エネ基準適合住宅仕様
■地震に強い耐震等級3
■子機付きインターホン
■3種類から選べるLIXILの建具
■食器洗い乾燥機標準装備など










-
物件種別
新築戸建
-
所在地
兵庫県尼崎市額田町19-9
-
土地面積
66.32㎡
-
建物延床面積
103.29㎡~113.61㎡
-
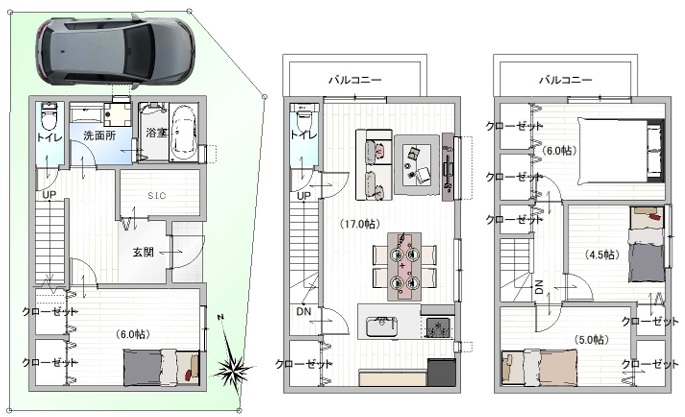
間取り
3LDK~4LDK
-
建物構造
木造
-
階層
3階建て
-
駐車場
あり
-
用途地域
準工業地域
-
建ぺい率
60%
-
容積率
200%
-
土地権利
所有権
-
引渡時期
相談
-
現況
古家あり
-
取引態様
売主
■交通
阪急神戸線「園田」駅 徒歩12分
JR東西線「加島」駅 徒歩33分










