物件情報property
大阪市平野区
Aria House平野東3丁目
限定1区画分譲!土地約20坪!前道広々!
◇大阪メトロ谷町線「平野」駅 徒歩10分・JR関西本線「加美」駅 徒歩17分◇
◆小学校やスーパーが近い好立地◆
平野南小学校 徒歩4分 摂陽中学校 徒歩14分
光源寺幼稚園 徒歩6分 サンエー 平野店 徒歩6分
- 【豪華設備】
■省エネ基準適合住宅仕様
■地震に強い耐震等級3
■子機付きインターホン
■3種類から選べるLIXILの建具
■食器洗い乾燥機標準装備など










-
物件種別
新築戸建
-
所在地
大阪市平野区平野東3丁目5-33
-
土地面積
66.14㎡
-
建物延床面積
111.78㎡
-
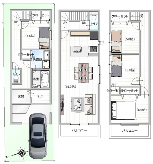
間取り
4LDK
-
建物構造
木造
-
階層
3階建て
-
駐車場
あり
-
用途地域
第一種住居地域
-
建ぺい率
80%
-
容積率
200%
-
土地権利
所有権
-
引渡時期
相談
-
現況
更地
-
取引態様
売主
■交通
大阪メトロ谷町線「平野」駅 徒歩10分
JR関西本線「加美」駅 徒歩17分










